verdi

Ubicación: Local-Vivienda en la calle Verdi de Barcelona

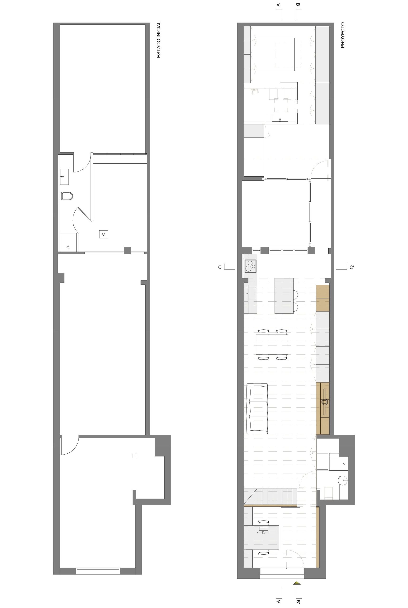
Actuación: Reforma integral

Superficie: 100 m2

Año: 2015

Constructora: Redama + T.Funes

Fotos: Carles Ros

El proyecto transforma un largo contenedor rectangular en una vivienda abierta, donde los espacios los define un gran armario continuo y sus variaciones. Los colores neutros confieren uniformidad y calidez al ambiente que, gracias a un pequeño patio interior, cuenta también con elementos naturales.

antes

Ir al contenido